1 799 000 $
231, Rue Trinidad
Dollard-des-Ormeaux

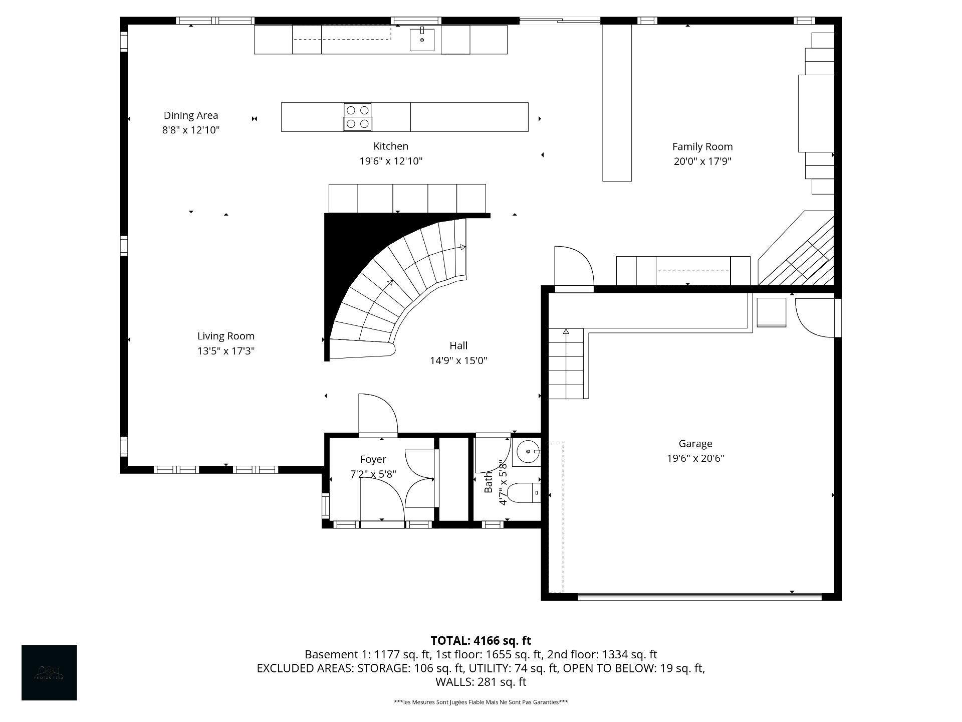
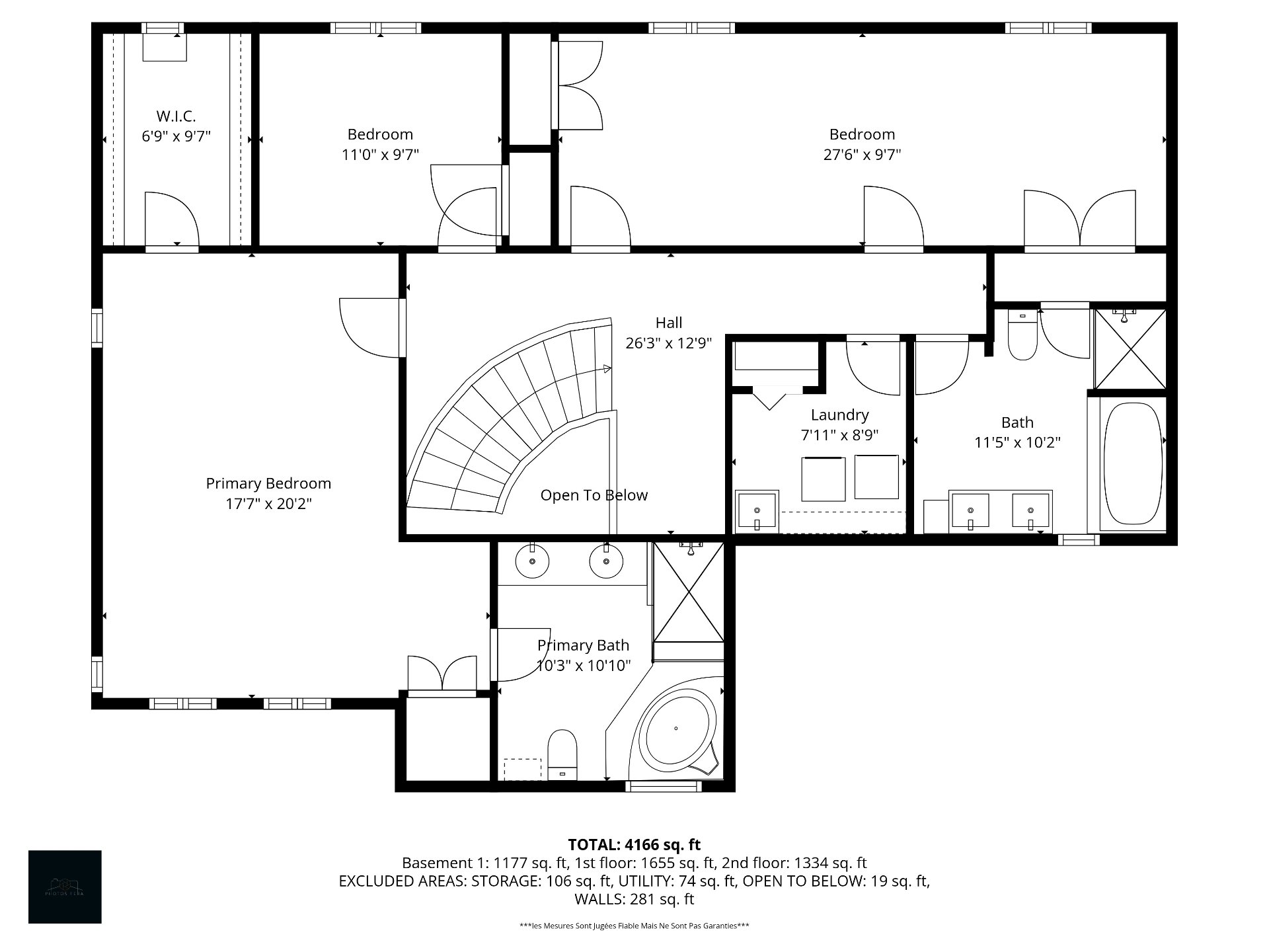
La toute première fois sur le marché ! Une opportunité de posséder une propriété méticuleusement entretenue et rénovée sur un terrain d'angle dans l'un des secteurs les plus convoités de DDO. Les propriétaires d'origine de cette maison rénovée avec goût ont organisé les améliorations avec un designer montréalais renommé en utilisant des matériaux de qualité supérieure et un design intemporel. La cuisine et les salles de bain sont toutes mises à jour avec des finitions sophistiquées. L'arrière-cour est dotée d'une luxueuse table à manger en pierre, d'un barbecue intégré, d'un foyer en pierre et d'un patio élégant. Deux chambres converti en une
Demande d'informationMontant des versements mensuels
**Le prix affiché n’inclut pas la prime d’assurance SCHL.
Taxe de mutation
** Uniquement à titre de référence, pour le montant exact, s'il vous plaît confirmer auprès de la ville ou la municipalité.
Pouvoir d'achat
**Le prix affiché n’inclut pas la prime d’assurance SCHL.